Pfarrverband St. Albert-Allerheiligen

St. Albert Tel. 089-324 751-0 |Allerheiligen Tel. 089-360 497-0
E-Mail: St-Albert.Muenchen@ebmuc.de | E-Mail: Allerheiligen.Muenchen@ebmuc.de

Baugestalt und Grundriss

Kirche St. Albert von außen mit Straßenschildern

Baugestalt

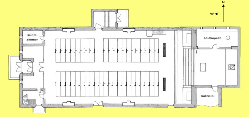
Der Architekt Georg Buchner (1890–1971) entwarf St. Albert gemäß ihrer Doppelfunktion als Pfarr‐ und Ordenskirche. So ist das nach Osten ausgerichtete Gotteshaus als Hallenkirche mit erhöhtem Chor über der als Werktagskirche gedachten Unterkirche, dem heutigen Dominikus‐Saal, konzipiert. Die links vom Chor abgehende Taufkapelle war ursprünglich den Dominikanern des angeschlossenen Klosters zur Andacht vorbehalten und auch der tiefe Chorraum war mit einem eigenen Chorgestühl ausgestattet.

Der 12 m hohe, langestreckte Kirchenraum mit einer Länge von 48 m und einer Breite von 16 m gibt etwa 500 Gläubigen Platz. Der Turm in der Südostecke mit schlichtem Satteldach hat eine Höhe von 25 m. Er beherbergt die Sakristei, darüber die Hauskapelle des Klosters und in der Glockenstube vier mächtige Stahlgussglocken, eines der größten und volltönendsten Geläute der Stadt München.
Die neuromanische Architektur ist von Schlichtheit und Klarheit geprägt. Rundbogenfenster in den Seitenwänden bringen Licht in den von einer mächtigen Holzbalkendecke überdachten Kirchenraum. Der Blick auf Hochaltar und Tabernakel im erhöhten Chorraum ist von jedem Platz im Kirchenraum unverstellt.

Der Architekt griff für den Bau ausschließlich auf heimische Materialien zurück. So steht der Ziegelbau auf einem Sockel aus Brannenburger Nagelfluh, der Boden ist mit Solnhofener Platten gefliest, der Marmor für Stufen, Altäre und Kanzel stammt aus Treuchtlingen und Decke und Mobiliar sind aus Lärchenholz gefertigt.

Grundriss

Grundriss der Kirche St. Albert