St. Laurentius, Ohlstadt

Hagrainstr. 10; 82441 Ohlstadt 
Tel. 08841 - 488 060          Fax 08841 - 488 06 29          E-Mail

Geschichte

Kindergarten und Kinderkrippe in Ohlstadt – wie alles begann:
 
1929    am 1. Mai eröffnen, auf Betreiben des damaligen Bürgermeisters Herrn Zach,
            die Englischen Fräulein aus Augsburg, in ihrem für ein Erholungsheim
            erstandenen Anwesen, einen Kindergarten.
 
1941    bis 1945 lag die Leitung des Kindergartens bei der NSV
            (nationalsozialistische Vereinigung)
 
1945    übernahmen wieder die Englischen Fräuleins, wieder mit Schwester
            Mater Alberta, die Aufgabe der Kinderbetreuung, jetzt bereits im alten
            Schulhaus (heute Rathaus) unter gemeindlicher Trägerschaft.
 
1961    wurde der Kindergarten um eine Gruppe erweitert
 
1964    durch einen Anbau wurde die Einrichtung einer dritten Gruppe ermöglicht.
 
1976    nach mehr als 40 Jahren Engagement für „ihren“ Kindergarten geht
            Schwester Mater Alberta in den verdienten Ruhestand
 
1985    erste Verhandlungen mit der kath. Kirche auf Übernahme der Trägerschaft
 
1991    auf Grund des dörflichen Wachstums und damit steigender Kinderzahlen
            wurde es immer offensichtlicher, dass die räumlichen Kapazitäten des
            Kindergartens unzureichend sind. 
            Die kath. Kirchenstiftung erklärte sich bereit die Trägerschaft eines neu
            zu erbauenden Kindergartens zu übernehmen und auch das Grundstück zur
            Verfügung zu stellen. Die Gemeinde, mit Herrn Bürgermeister Gumbert, fällte
            nun den Beschluss, den Bauherrn des neuen Kindergartens, die kath.
            Pfründestiftung St, Laurentius, finanziell zu unterstützen.
 
1997    Montag 14.04. Umzug des Kindergartens in das neue Gebäude an der
            Hagrainstraße.
            Samstag, den 19.07. Einweihung des Kindergartens mit seinen drei Gruppen
 
2006    Erweiterung des Kindergartens um eine vierte Gruppe
 
2011    auf Betreiben von Bürgermeister Anton Fischer Anbau einer zweigruppigen   
            Kinderkrippe für Kinder ab einem Jahr
 
2014    im Januar Eröffnung und im März Einweihung der Kinderkrippe






Das Haus

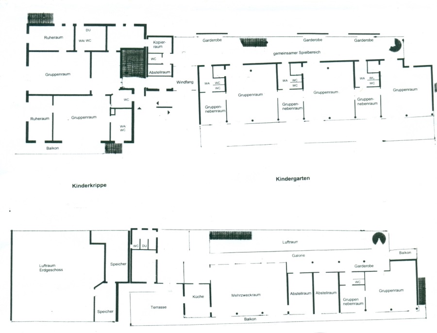
Plan vom Kindergarten

Der Garten:

Umgeben ist das Haus von einem großen Garten, den die Kinder in allen Bereichen nutzen können.
Vor dem Kindergarten liegt der Bereich, der mit seinen Spielgärten dem Kindergartenalter angepasst ist.
Die Spielgeräte vor der Kinderkrippe sind geeignet für Kinder von 1 bis 3 Jahre.
Durch eine möglichst abwechslungsreiche Gestaltung sollen die verschiedensten kindlichen Aktivitäten angesprochen werden:
* aktive Bewegung: laufen, klettern, rutschen, schaukeln, Ball spielen, ...
* soziales Lernen: Rollenspiele im Sandkasten, im Gartenhäusl, an der Maltafel, ...
* beobachten und experimentieren: Wasser und Sand, Gemüse und Blumen,
                                                         Wind und Wetter, die vier Jahreszeiten, ...
* ausruhen und entspannen: auf Bänken, im Gras und in der Hängematte, ...
Den Hügel nutzen die Kinder im Winter zum Bobfahren und im Sommer für die Wasserrutsche, den gepflasterten Eingangsbereich zum Dreirad und Roller fahren